Tiny Refuge oo1 / Julian Magnani

tr 001 image 02

© Open Building Collective

  • Architects: Julian Magnani
  • Area: 284 sq ft (26.5m2)
  • Year: 2025
  • License: CC BY-SA 4.0
  • Category: Tiny Home

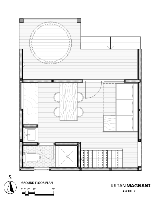
At 284 square feet, this tiny refuge leaves no room for the incidental. The thermal envelope: wood frame, double-glazed windows, and a well-sealed skin — achieves efficient performance without dependence on complex mechanical systems. Every layer does double duty: structural, insulating, and spatial at once.

tr 001 image 01

© Open Building Collective

The envelope is not a technical afterthought layered over a formal idea. It is the idea. The decisions around wall buildup, glazing ratios, and roof pitch are the same decisions that determine how the building feels, performs, and ages.

tr 001 image 04

© Open Building Collective

tr 001 image 03

© Open Building Collective

Orientation is treated as a primary design instrument. The refuge opens predominantly to maximize solar gain and natural light, while controlled openings on remaining facades balance privacy, ventilation, and thermal comfort. The building knows which way it faces.

This is not passive solar as a performance checkbox. It is a spatial logic: the south face is generous and open, the remaining faces are considered and selective. The result is a building that reads differently from each direction — and performs better for it.

Project gallery

Downloads

Similar Posts

Leave a Reply

Your email address will not be published. Required fields are marked *